DESOTO RURAL FIRE PROTECTION DISTRICT              
             
PRE-FIRE PLAN              
             
                               
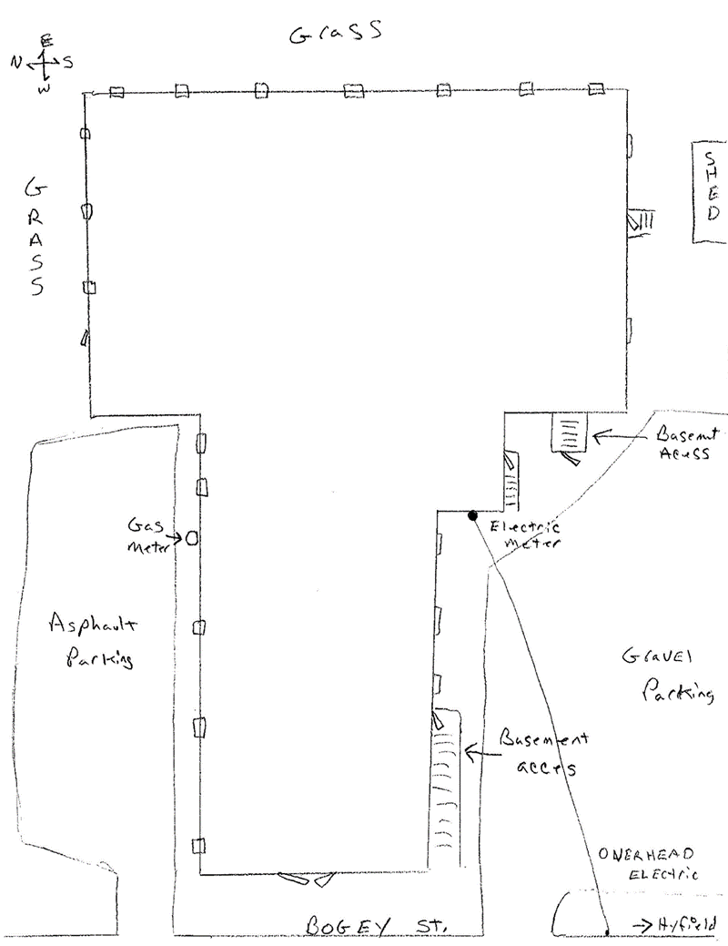
FIRST BAPTIST CHURCH OF VICTORIA                      
3408 Bogey Street   PRE-PLAN #                
  CARD # 58036              
            Map # 55              
OWNER       Landing Zone #                
PHONE                          
                               
      EMERGENCY CONTACTS                    
#1                        
# 2                        
                               
                               
Contents:                
Haz- Mat:                
Protection System: none              
Limited Access:                
Arial Placement:                
Drop Tank Placement:                
                               
Width 75   Occupancy Type Assembly                
Length 100   Type of construction Masonry block and brick                
Height       Roof     Floor Construction                
      truss joist              
# of Occupants (Avg)     Roof Covering     Common Attic?              
50-70   pitched shingle yes              
                               
  Level 1 Staging       Level 2 Staging                
                   
               
                               
  Hydrant Location     Water Supply #                
Hyfield Road at Morise Avenue   Fire Flow 100% 2500 gpm              
  Fire Flow 50% 1250 gpm              
                               
Water PWSD # 5              
Electric ameron              
Gas natural gas              
                               
    Suggested Strategies or Other Comments:                  
Full basement  with two separate access points