| DESOTO RURAL FIRE PROTECTION DISTRICT | |||||||||||
| PRE-FIRE PLAN | |||||||||||
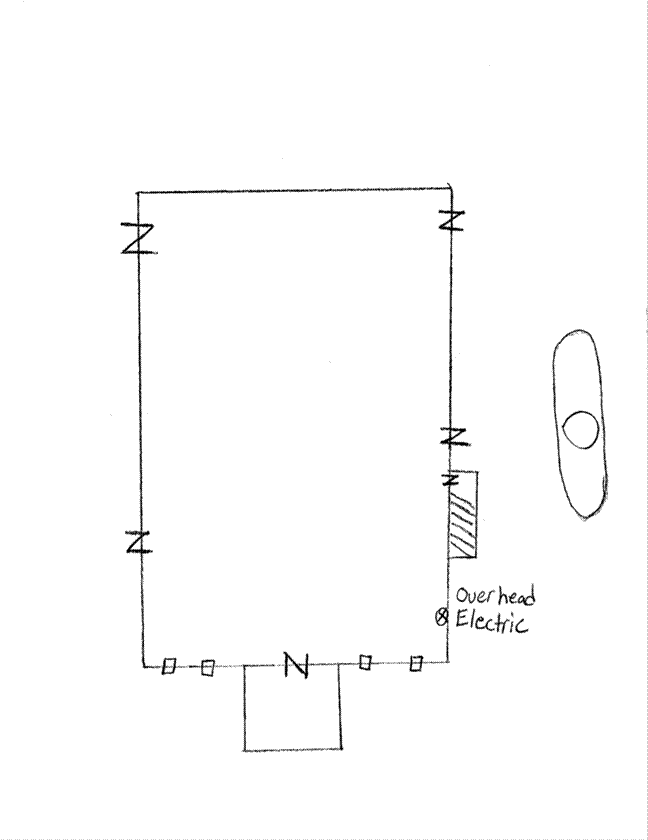
| LIBERTY FELLOWSHIP CHURCH OF GOD | |||||||||||
| 12312 State Rt. 21 | PRE-PLAN # | 123 | |||||||||
| CARD # | 5821001 | ||||||||||
| Map # | 46 & 55 | ||||||||||
| OWNER | Landing Zone # | 5 4 | |||||||||
| PHONE | |||||||||||
| EMERGENCY CONTACTS | |||||||||||
| #1 | |||||||||||
| # 2 | |||||||||||
| Contents: | |||||||||||
| Haz- Mat: | |||||||||||
| Protection System: | |||||||||||
| Limited Access: | |||||||||||
| Arial Placement: | |||||||||||
| Drop Tank Placement: | |||||||||||
| Width | 80 | Occupancy Type | Assembly | ||||||||
| Length | 50 | Type of construction | Heavy steel girder | ||||||||
| Height | 30 | Roof | Floor Construction | ||||||||
| heavy steel girder | wood joist | ||||||||||
| # of Occupants (Avg) | Roof Covering | Common Attic? | |||||||||
| 80-100 | metal decking | none | |||||||||
| Level 1 Staging | Level 2 Staging | ||||||||||
| Hydrant Location | Water Supply # | ||||||||||
| Fire Flow 100% | 2660 | ||||||||||
| Fire Flow 50% | 1330 | ||||||||||
| Water | well | ||||||||||
| Electric | ameron | ||||||||||
| Gas | Gieldbach propane | ||||||||||
| Suggested Strategies or Other Comments: | |||||||||||
|
|||||||||||
|
|||||||||||